The Girvan Story


Community-led heritage project to safe guard significant buildings in the town of Girvan.

  • Location

    Girvan

  • Status

    Pre-planning

  • Client

    South Ayrshire Council

  • Category

    Community, Conservation, Regeneration and Masterplanning, Retrofit and Reuse

The Girvan Regeneration project is a community led initiative being delivered by South Ayrshire Council to improve three historically significant buildings within the town centre of Girvan in South Ayrshire. Working in collaboration with Advanced Accredited Conservation Architect, Fiona Sinclair, and the wider design team of Narro, Harley Haddow, and Armour Construction Consultants, O’DonnellBrown developed costed design options for the three priority projects and assisted South Ayrshire Council with a Stage 2 funding application to Historic Environment Scotland and the National Lottery Heritage Fund.

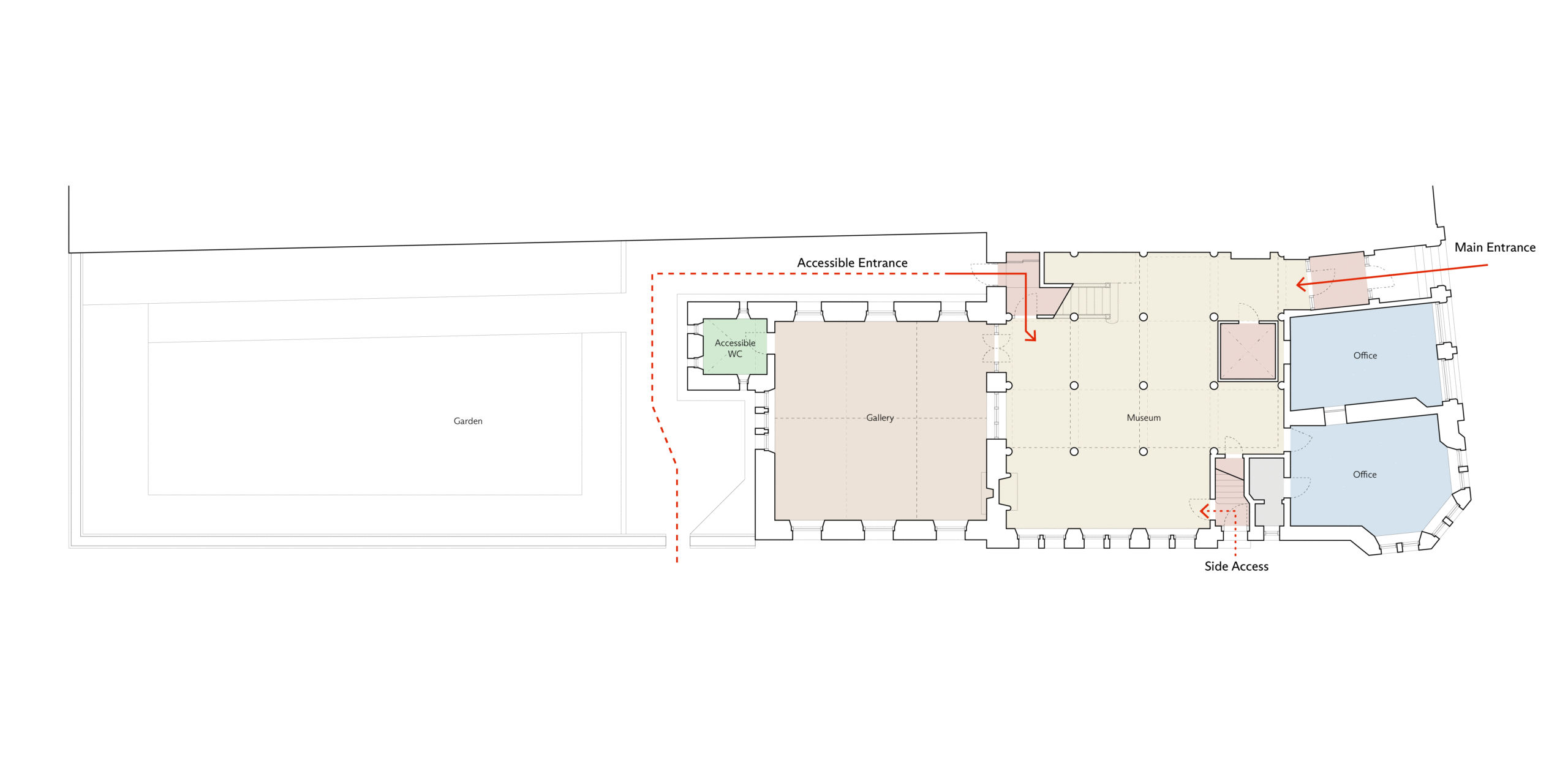
The three projects are; the Category B-listed Stumpy Tower, one of the most prominent buildings in the town which once served as the town jail but is now a visitor attraction providing four floors of exhibits about the buildings history, the Category B-listed McKechnie Institute & Museum, and the Category B listed commercial and residential properties at 14-18 Dalrymple Street which were the former Royal Bank of Scotland and Bank Managers accommodation. The project was delivered in parallel to a programme of activities and training aimed at helping the local community engage with their built heritage and providing opportunities to learn traditional skills. The activities and training programme was delivered by Ice Cream Architecture.

Aerial view of Girvan highlighting Stumpy Tower, McKechnie Institute & Museum and 14-18 Dalrymple Street buildings.

Fabric repair strategy for Stumpy Tower.

Fabric repair strategy for McKechnie Institute & Museum.

Fabric repair strategy for 14-18 Dalrymple Street.

Our Process

The proposals for the three listed buildings which make up the Girvan Story project were developed through a process of detailed archival research and building surveys. The significance of each building was then documented and proposals for repair were then developed with an approach of minimal intervention.