The Pipe Factory


Refurbishment of the heritage landmark

  • Location

    The Barras, Glasgow

  • Status

    On site

  • Client

    Friends of the Pipe Factory

  • Category

    Community, Conservation, Retrofit and Reuse

We are currently working on the retrofit of The Pipe Factory, a former factory in the city’s Barras Market and an iconic landmark in Glasgow’s industrial heritage. The ornate brick Grade B-listed Pipe Factory was purpose-built in 1876-79 for William White & Sons as a factory for the production of clay smoking pipes. Since 2015 it has been used as artist studios and exhibition space. The upgraded building will be a hub for enterprise, with a focus on education, creativity, and pathways to employment. Programming of the public areas will focus on celebrating the heritage of the building and local area; increasing access to the arts, architecture and design; providing skills development and training; and bringing communities together.

Working with conservation architects, Loader Monteith, the approved designs include the repair of the historic building fabric; full accessibility, and insulation and energy efficiency improvements. Each intervention is carefully balanced with the conservation requirements of the building’s heritage assets to ensure protection of this landmark building.

Existing building

The Grade B Listed building is characterised by its unique polychromatic red and white brickwork and its arched renaissance style windows.

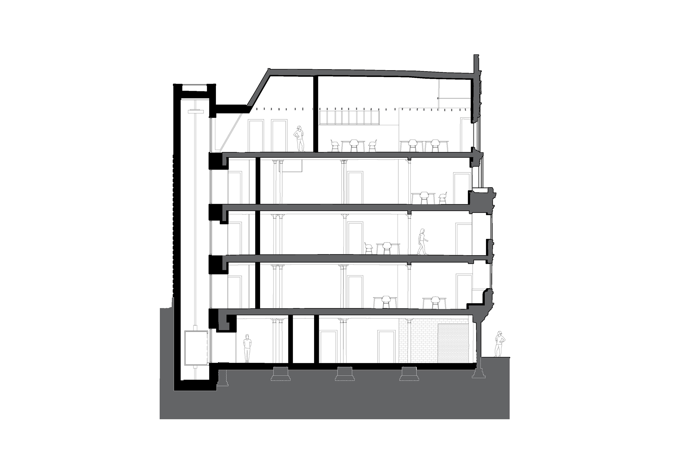
The materiality of the lift shaft sits in dialogue with the existing building

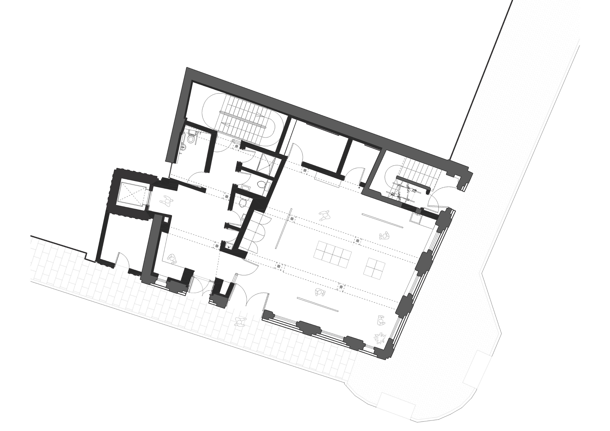
Proposed ground floor

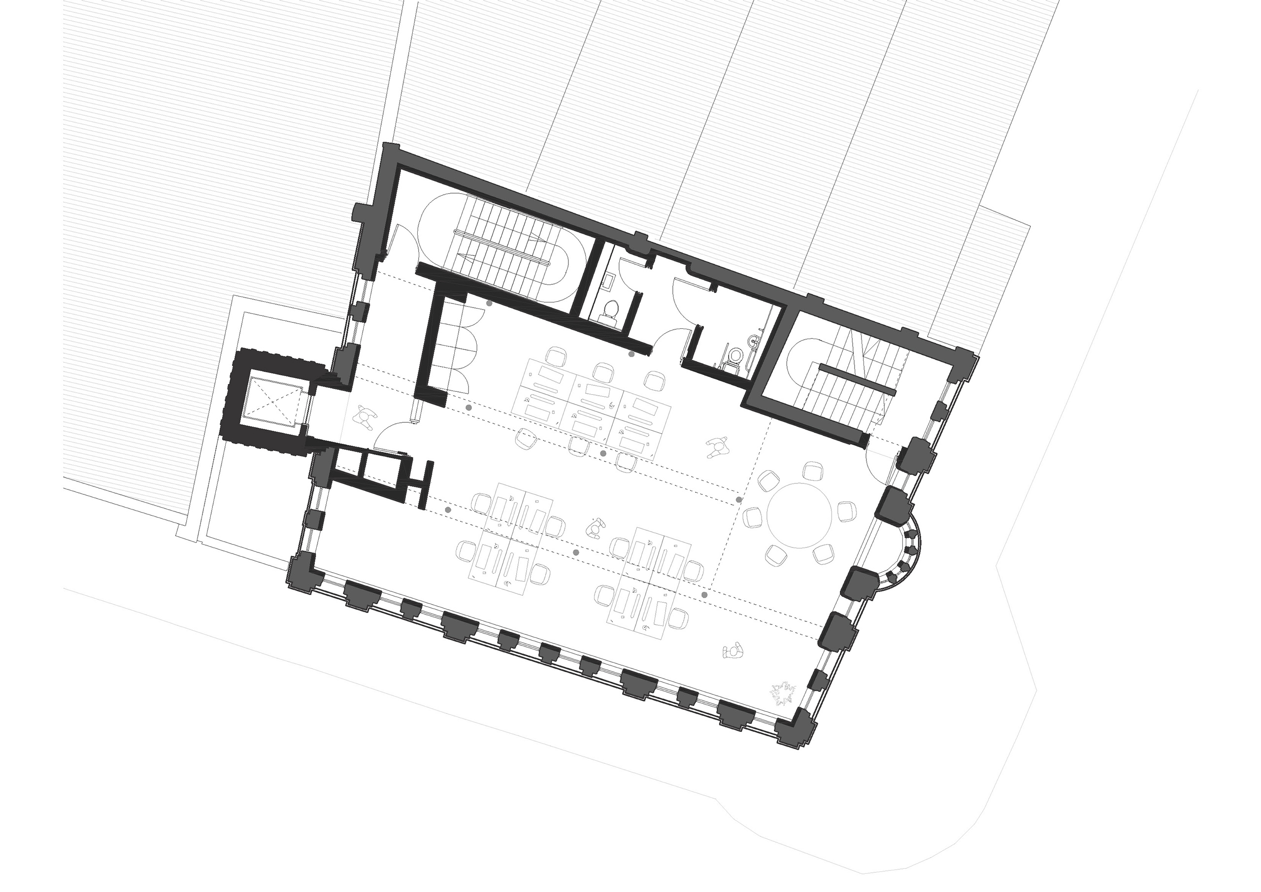
Proposed typical upper floor

Our Process

Our approach to the retrofit of The Pipe Factory has been necessarily sensitive to the building’s strong historical characteristics. Extensive testing through model-making both physical and digital has been a crucial tool in achieving respectful balance.