The Warehouse


Conversion of an existing warehouse building in Leith conservation area into an aparthotel for HUB Capital.

  • Location

    Edinburgh

  • Status

    Site start 2025

  • Client

    HUB

  • Category

    Residential, Retrofit and Reuse

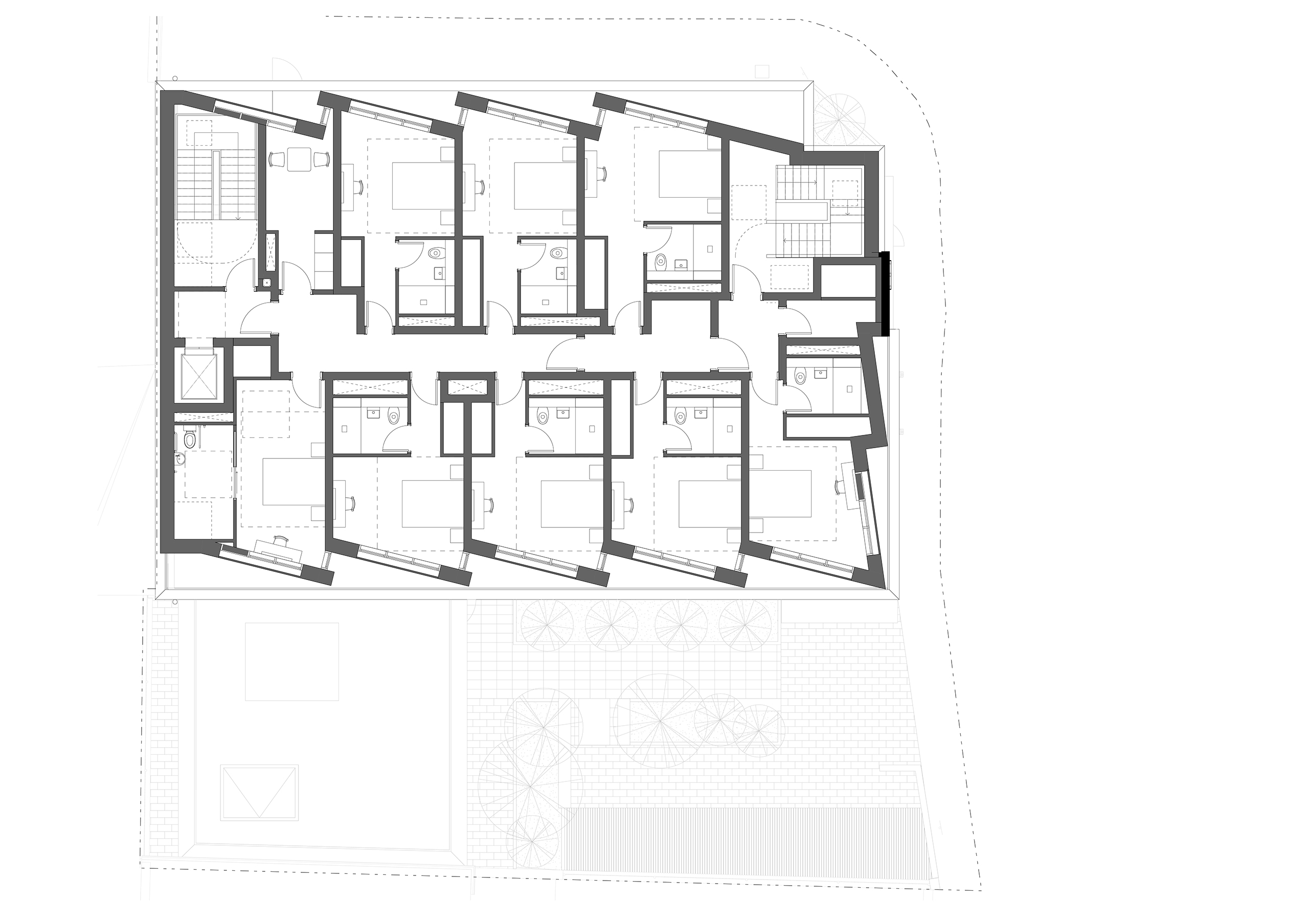
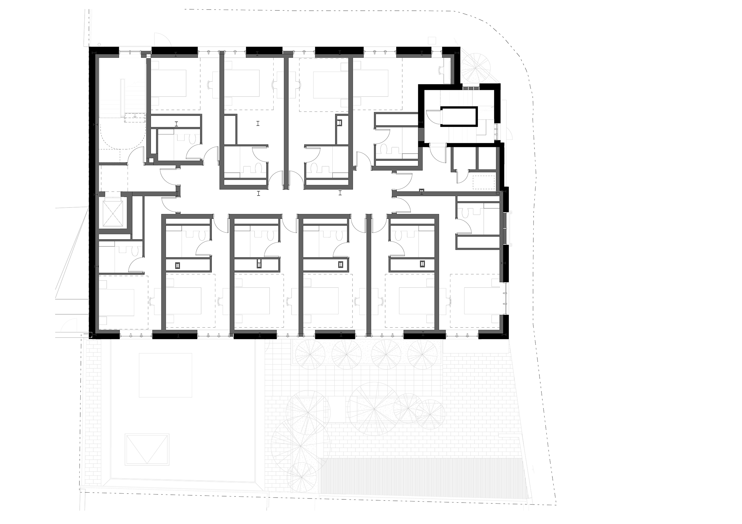
The Warehouse, located on Water Street in Leith, looks to retrofit an existing mid-century, red brick industrial warehouse, with a design proposal consisting of a ‘folded’ lightweight metal roof extension, following the example of the 1961 extension, and a brick courtyard extension. As part of our design, we have introduced a landscaped courtyard, reimagining the existing yard space into an urban garden within the city, softening the transition between street and internal space.

Existing building. Photo credit Tom Manley

Our Process

The existing red brick, steel-framed warehouse, built in the late 1950s, is a fine example of Leith’s industrial heritage. Historically, the building served as a whisky bond. Maps from 1971 reveal that it was once connected to a warehouse in Maritime Court by a now demolished high-level bridge. In our proposal, we aim to preserve and enhance the building's character, ensuring its legacy for future generations.