New Olympia House


Extensive ‘defurb’ to transform the 1927 Salvation Hall in Bridgeton into office space.

  • Location

    Bridgeton, Glasgow

  • Status

    Completed 2023

  • Client

    Clyde Gateway

  • Category

    Workspace, Conservation

  • Awards

    AJ Retrofit Award for Positive Addition under £5 million & Best Retrofit of the Year 2024

  • Retrofit - Silver, Scottish Design Awards 2025

  • Winner: Small Development of the Year (Commercial Use), Scottish Property Awards 2024

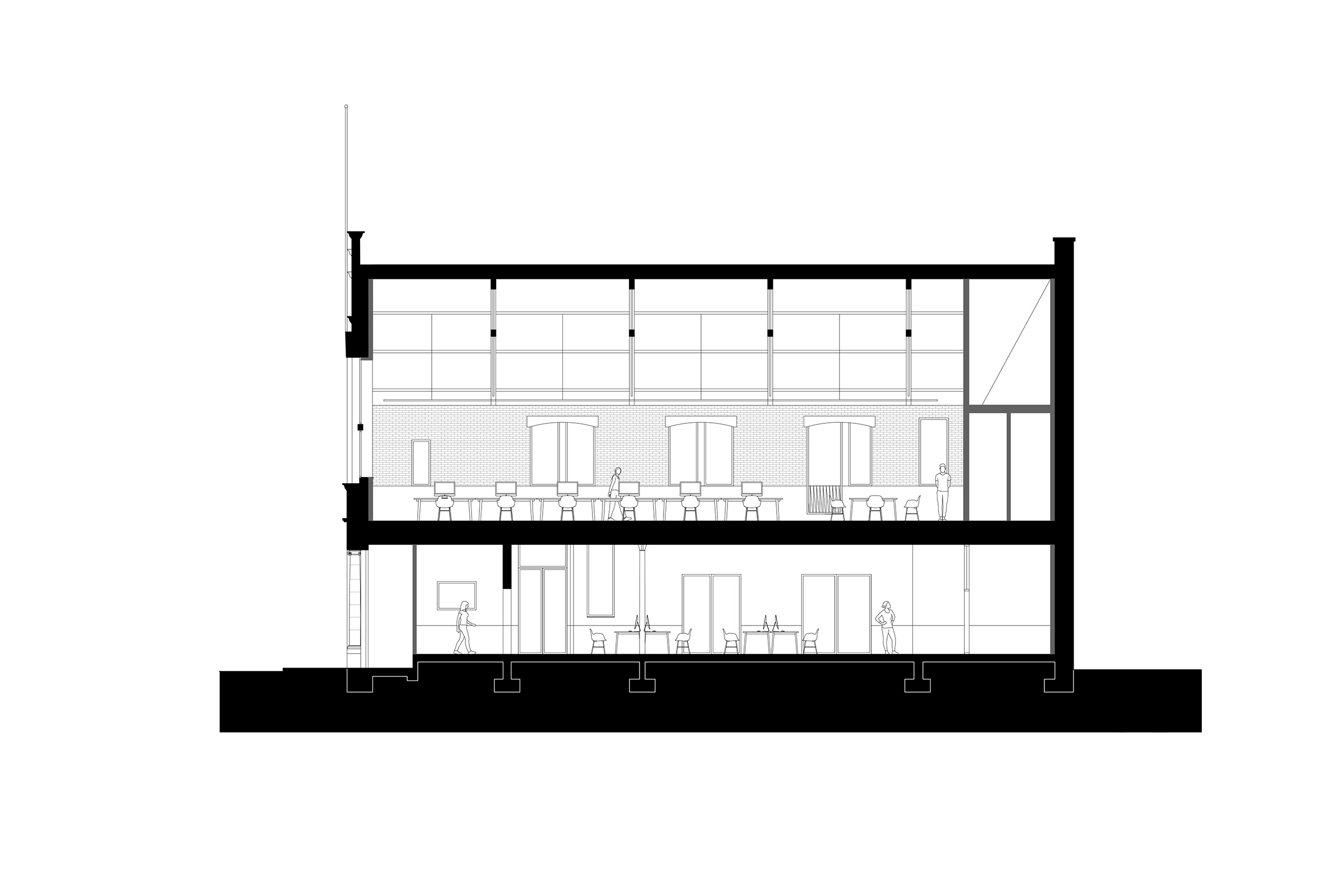
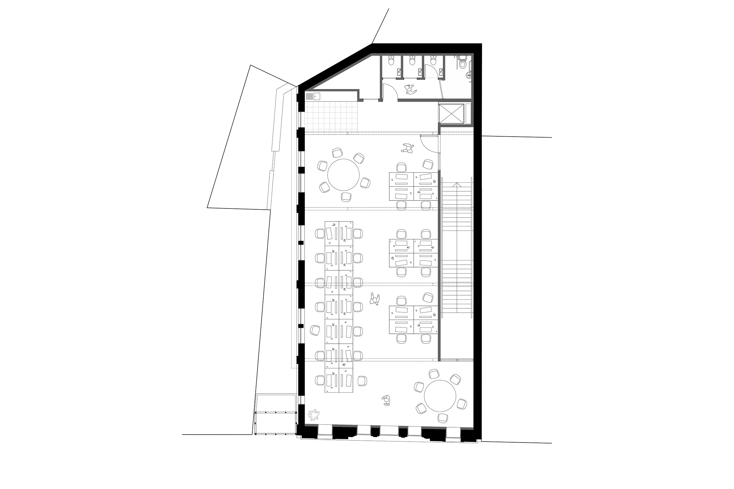
Olympia House sits within the Bridgeton Cross Conservation Area in East Glasgow and was built in 1927 as a Salvation Army Citadel. In 2023 we completed extensive ‘defurb’ works to transform the building into office space; retaining and repairing historical elements as well as significantly improving the building’s energy efficiencies and providing accessible entry. Central to the challenge of re-furbishing the building was providing access for all; our design response was to create a new ramped entrance to the side of the building, with this design move marked by a large sculptural metal tower. This Beacon confidently yet respectfully marks the new accessible entrance and makes reference to the Bridgeton Umbrella and Glasgow’s rich history of ornate metalwork.

The internal spaces have been approached with a ‘de-furb’ strategy, exposing brickwork, roof trusses and existing timber linings, whilst balancing this with drastically improving the energy performance of the building with new insulation and high-performing windows throughout. A new staircase along the party wall allows more natural light into the centre of the plan.

Our Process

The existing Olympia House had a highly unique and well-detailed façade which indicated the likely presence of original heritage details internally. As such we wanted to approach the project with a sensitivity to its historical features and employed a ‘defurb’ strategy, stripping back and celebrating these details. The Beacon marks the new public entrance, which is now fully accessible and completes the street elevation, celebrating the area’s history of ornate metalwork as found on the Bridgeton Umbrella.